3 BedSemi DetachedHouse
Available to Let
Key Features
- Three bedroom semi detached property
- Generous enclosed rear garden
- Popular residential area
- Driveway for ample parking
- Two reception rooms
- Newly decorated
- Available now
Overview
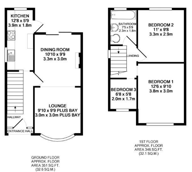
A well presented three bedroom semi-detached property situated in a popular residential area with a fantastic generous rear garden. The property briefly comprises of entrance hall, through lounge/diner, extended kitchen, three bedrooms, bathroom, driveway, front and rear gardens, central heating and double glazing throughout. Available now.






















